说明:月面综合环境试验设备功能用途:提供温度、真空度、月尘等环境。用于开展特种加工零件可靠性验证,极端环境下特种钻探器件测试、资源开发与利用及特种钻探相关
购买咨询
设备名称:月面综合环境试验设备
功能用途:提供温度、真空度、月尘等环境。用于开展特种加工零件可靠性验证,极端环境下特种钻探器件测试、资源开发与利用及特种钻探相关课程的教学实践与深空探测特色课程的认知实践,实现功能包括高真空环境试验、高低温温度交变环境试验、真空紫外线辐射试验、近紫外线辐射试验、月表尘埃环境试验、月壤颗粒带电环境试验以及在月表尘埃环境下真空摩擦磨损试验,目标是提升工程实训及拔尖人才实践培养质量,保障极端环境资源开发与利用教学与科研。
品牌:hth体育app下载。类型:国产。型号:WS-RZKZH-762
序号 | 分系统名称 | 单位 | 数量 | 说明 | |
1 | 真空系统 | 真空容器 | 套 | 1 | 用于形成特定环境空间 |
2 | 真空抽气系统 | 套 | 1 | 用于真空气压控制 | |
3 | 热控试验装置 | 制冷系统 | 套 | 1 | 用于试验平台控温 |
加热系统 | |||||
4 | 月尘源系统 | 套 | 1 | 月尘处理 | |
5 | 紫外辐照系统 | 套 | 1 | 紫外辐照 | |
6 | 月尘摩擦磨损试验 | 套 | 1 | 在真空度、温度、月尘等特定环境下进行摩擦磨损试验 | |
7 | 月尘粘附测试扩展功能接口 | 套 | 1 | 扩展接口 | |
8 | 系统控制软件功能 | 套 | 1 | 具有真空启动控制功能 热循环控制功能 真空紫外辐照控制功能 月尘源控制功能 真空摩擦磨损测试控制功能 具备加热安全互锁保护功能 | |
9 | 设备控制系统组件 | 套 | 1 | 配备主电源控制器,真空系统控制器,月尘源控制器,热控平台控制器,计算机控制系统,紫外辐照系统控制器。 | |
10 | 辅助设施 | 套 | 1 | 用于保证系统正常运转所需的全部附件,包括冷水机组、其他必要物品等 | |


指标项 | 指标要求 | |
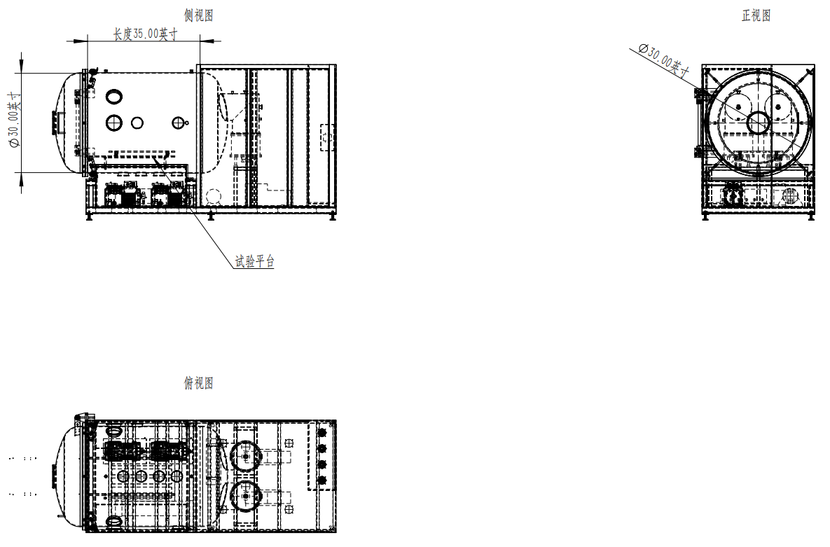
真空系统 | 真空舱体尺寸 | 真空舱体内径30英寸,舱体长度35英寸 |
舱体材质 | 真空舱内侧表及内部结构均采用不锈钢制造 | |
真空压力控制器功能 | 真空压力控制器可同时显示 8 组真空计读数,响应时间≤20ms | |
高真空规测量范围 | 高真空规测量范围:覆盖10⁻³Torr~5×10⁻⁹Torr | |
真空规测量灵敏度 | 测量灵敏度≤2.7A/Torr+20%@5×10-6Torr | |
低真空规测试范围 | 低真空规测试范围:覆盖10⁻⁴Torr~1.0atm | |
低真空测试响应时间 | 低真空测试响应时间:≤0.2s | |
月尘防护指标 | 配备4组SC-10型月尘过滤器,可过滤粒径≥5micron | |
工作真空压力 | 工作时真空压力可达到~5×10⁻⁵Torr | |
热控试验装置 | 温度控制范围 | 试验平台温度控制范围:覆盖-150℃~+150℃(标准模式) |
温度速率及温控精度 | 试验平台升温速率:≥3℃/min之间,降温速率≥1℃/min之间; 试验平台高温区温控精度≤±3℃,低温区温控精度≤±5℃。 | |
样品试验区域尺寸 | 样品试验有效区域尺寸 200×200mm | |
加热器指标 | 试验平台采用插入式电控加热器(≥3 组) | |
低温阀压力范围 | 低温阀组压力允许范围≤48PSI (典型) | |
月尘源系统 | 预处理系统类型 | 多通道月壤预处理装置 |
月尘充电激活方式 | 月尘充电激活方式:真空紫外辐射 | |
月尘预处理温度 | 月尘预处理温度范围:≤+150℃ | |
月尘淋撒面积 | 月尘淋撒覆盖有效面积≥ ~200×200mm | |
月尘淋撒装置 | 提供月尘淋撒装置结构应力变形设计计算书1份 | |
月尘淋撒分布测试方式 | 矩阵式月尘流均匀性分析装置 | |
月壤模拟物指标 | 配备SC-071D型月壤模拟物,平均粒径小于10um | |
紫外辐照系统 | 真空紫外工作范围 | 真空紫外有效工作范围:覆盖115nm—400nm |
真空紫外窗口及制冷 | 真空紫外具备 MgF₂窗口,强制空气制冷 | |
真空紫外辐射范围 | 辐照范围覆盖φ310mm@50cm(典型值) | |
真空紫外安装法兰泄漏指标 | 泄漏率≤1×10E-10Pa m3/s | |
近紫外工作范围 | 近紫外有效工作范围:覆盖200 - 400nm | |
近紫外辐照发散角度 | 近紫外辐照发散角度≤2.5°(半角) | |
近紫外辐照均匀性 | 近紫外辐照均匀性≤±10% | |
近紫外功率调节 | 具备近紫外辐照强度调节控制功能 | |
近紫外控制传感器 | 具备覆盖365nm波长控制反馈传感器和覆盖260nm波长控制反馈传感器 | |
近紫外安全报警 | 具备声音式较大功率2000W报警; | |
光源 | 具备紫外辐照系统光源,提供采用的紫外辐照光源与太阳光谱强度对比数据1份 | |
月尘摩擦磨损试验 | 样品温控范围 | 样品温控范围:覆盖-150°C ~+150°C |
工作真空度 | 真空度兼容范围:覆盖5×10⁻⁵Torr~1atm | |
载荷 | 配备独立载荷10个 | |
扭矩传感器较大量程 | 配备的扭矩传感器较大量程≥850mN·M | |
月尘导流组件 | 具备月尘导流组件 | |
月尘模拟物型号 | 配备SC-071和 SC-071D型月壤模拟物 | |
月尘粘附测试扩展功能接口 | 具备月尘粘附软件界面接口 | |
系统控制软件功能 | 1. 具有真空启动控制功能 2. 热循环控制功能 3. 真空紫外辐照控制功能 4. 月尘源控制功能 5. 真空摩擦磨损测试控制功能 6. 具备加热安全互锁保护功能 | |
设备控制系统组件 | 配备主电源控制器,真空系统控制器,月尘源控制器,热控平台控制器,计算机控制系统,紫外辐照系统控制器。 | |
真空容器是真空热环境试验系统的主要分系统之一,真空容器不仅是真空热试验系统的主体,也是整个真空热试验系统布局、外围保障及基础建设的基准。
卧式圆筒形结构,鞍座支撑;壁厚:16mm。
真空容器主要包括:真空容器直段筒体、后端封头、前端舱门、舱门锁紧机构、容器鞍座、导轨、底板、外部载物车、法兰接口等部分。
真空容器与机组、控制系统,做分体式。机组单独放置在机组间,控制单独放置在控制间,隔离防爆。

真空容器结构图
真空抽气系统主要包括真空泵(主抽泵、粗抽泵、前级泵等)、真空阀门(主抽阀、前级阀、放气阀等)、配套管路及真空测量装置等。
真空计实时监测舱内气压,反馈至控制系统,控制系统控制真空泵及阀体抽真空。真空容器制作后会进行探伤,保证密封性。
配备复压系统,通过干燥、洁净的氮气或空气可将真空容器内的压力恢复到大气压。
真空压力控制器功能 | 真空压力控制器可同时显示 8 组真空计读数,响应时间≤20ms |
高真空规测量范围 | 高真空规测量范围:覆盖10⁻³Torr~5×10⁻⁹Torr |
真空规测量灵敏度 | 测量灵敏度≤2.7A/Torr+20%@5×10-6Torr |
低真空规测试范围 | 低真空规测试范围:覆盖10⁻⁴Torr~1.0atm |
低真空测试响应时间 | 低真空测试响应时间:≤0.2s |
月尘防护指标 | 配备4组SC-10型月尘过滤器,可过滤粒径≥5micron |
工作真空压力 | 工作时真空压力可达到~5×10⁻⁵Torr |
(1) 试验平台温度控制范围:覆盖-150℃~+150℃(标准模式)
(2) 试验平台升温速率:≥3℃/min之间,降温速率≥1℃/min之间;试验平台高温区温控精度≤±3℃,低温区温控精度≤±5℃。
(3) 样品试验有效区域尺寸不小于 200×200mm
(4) 试验平台采用插入式电控加热器(≥3 组)
(5) 低温阀组压力允许范围≤48PSI (典型)
采用压缩机制冷,单机自复叠制冷方式。具备低温节能技术,低温工作状态下,加热器不参与工作,我们采用精准控温,制冷不加热、加热不制冷,与同行业相比能耗降低40%。
在试验平台内安装盘管,内部流动换热介质。
采用插入式电控加热器,3组。
(1) --温度采集精度:0.01℃
(2) --温度输入:A级高精度Pt100铠装铂电阻
采用电加热器提供热源实现对工作室的升温;通过机械制冷系统制冷实现对工作室的降温;控制器通过采集温度传感器信号和设定值进行比对,通过PID+PWM 输出自动调节加热器加热功率或制冷蒸发器的制冷剂流量或液氮流量,使设备箱内的空气温度达到动态平衡;制冷不加热、加热不制冷。
区别于冷热平衡恒温方式,采用国际先进的热气旁通调节技术,可以实现制冷输出的无级调节,低温恒温无需开启加热系统。可以显著的提高制冷系统的效率,节能降耗。
(1) 多通道月壤预处理装置
(2) 月尘充电激活方式:真空紫外辐射
(3) 月尘预处理温度范围:≤+150℃
(4) 月尘淋撒覆盖有效面积≥ ~200×200mm
(5) 提供月尘淋撒装置结构应力变形设计计算书1份
(6) 矩阵式月尘流均匀性分析装置
(7) 配备SC-071D型月壤模拟物,平均粒径小于10um
(1) 真空紫外有效工作范围:覆盖115nm—400nm
(2) 真空紫外具备 MgF₂窗口,强制空气制冷
(3) 辐照范围覆盖φ310mm@50cm(典型值)
(4) 泄漏率≤1×10E-10Pa m3/s
(5) 近紫外有效工作范围:覆盖200 - 400nm
(6) 近紫外辐照发散角度≤2.5°(半角)
(7) 具备近紫外辐照强度调节控制功能
(8) 具备覆盖365nm波长控制反馈传感器和覆盖260nm波长控制反馈传感器
(9) 具备声音式较大功率2000W报警;
(10) 具备紫外辐照系统光源,提供采用的紫外辐照光源与太阳光谱强度对比数据1份
(1) 样品温控范围:覆盖-150°C ~+150°C
(2) 真空度兼容范围:覆盖5×10⁻⁵Torr~1atm
(3) 配备独立载荷10个
(4) 配备的扭矩传感器较大量程≥850mN·M
(5) 具备月尘导流组件
(6) 配备SC-071和 SC-071D型月壤模拟物
符合ASTM G65标准方法、ASTM G99、ASTM G133等摩擦磨损评价方法
具备月尘粘附软件界面接口
软件界面接口:开发专用粘附测试软件模块,嵌入现有PLC控制系统,支持参数配置、实时数据可视化、分析算法集成及报告生成,兼容Windows/Linux平台。
中控系统:自主研发动态软件控制系统,永久免费更新软件。

作用:用于试验室设备控制。
配备主电源控制器,真空系统控制器,月尘源控制器,热控平台控制器,计算机控制系统,紫外辐照系统控制器。
主要由本地控制及远程控制两个部分组成,由工业控制计算机、控制机柜、可编程控制器(PLC)、触摸屏及各种电气元件组成。
辅助系统包括设备正常运行所需的全部附件,包括但不限于冷水机组、空压机等;
Copyright © 2018 hth华体电竞.版权所有
服务热线
